
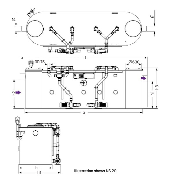
The separator for greasy wastewater is suitable for free-standing set-up in frost-protected rooms and comes without metallic components in the tank. The collecting tank made of permanently resistant polymer (PE) is equipped with an integrated sludge trap and has slopes in the tank base for fast and clean disposal. Two odour-tight covers with quick-release closures make easy access possible for cleaning and maintenance work. The innovative Shredder-Mix-System with integrated macerating system is responsible for homogenising and circulating the tank contents. Cleaning and odour-neutral disposal takes place via an exterior pump with 2-way valve and actuator which can be disconnected from the tank by a shut-off valve. The fully automatic program run is controlled by a user-friendly control unit with multi-line display that can be integrated into the building management system through a potential-free contact. Cleaning and disposal can be started remotely using the remote control, which is available as an option. Thanks to the customisable cleaning program with fast-selection function, cleaning can be adapted to the local circumstances as required. Observance of the Drinking Water Hygiene Directive can be guaranteed through the fully automatic rinsing of the drinking water pipes. 20 year polyethylene warranty.
Grease separator EasyClean free
NS 35, Auto Mix & Pump
Clean and odour-free disposal and cleaning
Customisation possible through control unit
Clean and odour-free disposal and cleaning
Item no. 93035.01/PVS
GTIN 4026092103722
Price group 60


