Açıklama
Variant
Type of system: duo pump
Passage seal for conduit pipe (DN): 100
Access steps: no
Passage seal for ventilation pipe (DN): 100
Installation: Wet installation
Pump control: Control unit
Backflow preventer: integrated
Pressure pipe connection: horizontal
Chamber system: LW 600
General characteristics
Standard: EN 12050-2, EN 12050-2 as well as EN 12050-1 (without ATEX requirements)
Type of wastewater: for wastewater with or without sewage (in installation situations without ATEX requirements)
Installation situation: underground installation
System type: Duo
Dimensions
Net weight: 127 kg
Gross weight: 139 kg
Groundwater resistant from lower edge of base section: 2500 mm
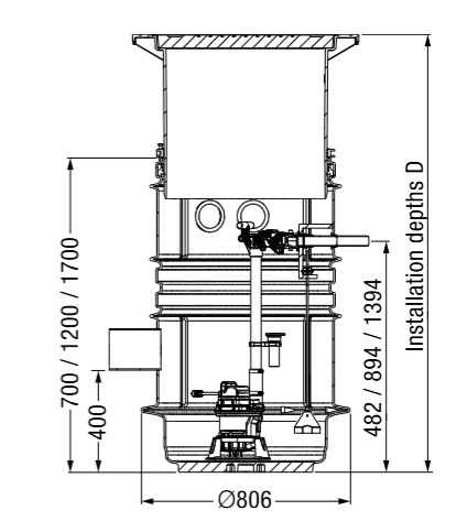
Diameter: 809 mm
Clear width (LW): 600 mm
Installation depth: 800 – 1250 mm
Length: 1000 mm
Width: 806 mm
Packaging dimension: length: 1200 mm
Packaging dimension: width: 800 mm
Packaging dimension: height: 1220 mm
Tank/drain body
Pressure pipe connection (DN): 32
Pressure pipe connection (OD): 40 mm
Connection conduit pipe (DN): 100
Venting connection (DN): 100
Distance from centre of outlet pipe to tank bottom: 482 mm
Distance pipe bottom inlet to tank bottom: 400 mm
Distance from centre of inlet pipe to tank bottom: 475 mm
Inlet nominal size (DN): 150 mm
Number of inlets: 1
Clear width of tank (LW): 600 mm
Pumping volume: 30 l
Coverage features
Type of cover: Round cover plate
Load class: A 15 (EN 124)
Pumping device
Pump: STZ 1000
Number of pumps: 2
Weight, pump: 10 kg
Connection type: Schuko (earthed contact) 2-pin
Operating voltage: 230 V
Protection class: I
Insulation class: F
Protection class (pump): IP 68 (3m)
Max. temperature (permanent) of conveyed material: 40 °C
Max. pumping capacity: 11,5 m³/h
Max. pumping height: 10 m
Speed: 2800 U/min
Power P1: 1,2 kW
Power P2: 0,69 kW
Operating mode: S3 – 50 %
Impeller type: Macerator
Length of mains cable for pump: 10 m
Rated current: 5,2 A
Control
Control unit: Comfort
Control unit function: With alarm message
Motor protection switch: yes
Alarm sensor: optical probe
Level measurement instrument: Submersible pressure switch
Type of level measurement: pneumatic
Protection class control unit: IP 54
Mains frequency: 50 Hz
Operating voltage: 230 V
Connection type: Schuko (earthed contact) 2-pin
Potential-free contact: yes
GSM interface: yes
USB interface: yes
Log book function: yes
Multi-line display: yes
Battery buffering: yes
Self-diagnosis system (SDS): yes
Warning equipment version: acoustic and optical signal
Type of fuse required (electrical protection): C 16 A






